projeto vi complexo híbrido
Desenvolvido no Archicad, 3dsmax, Corona Render e Photoshop
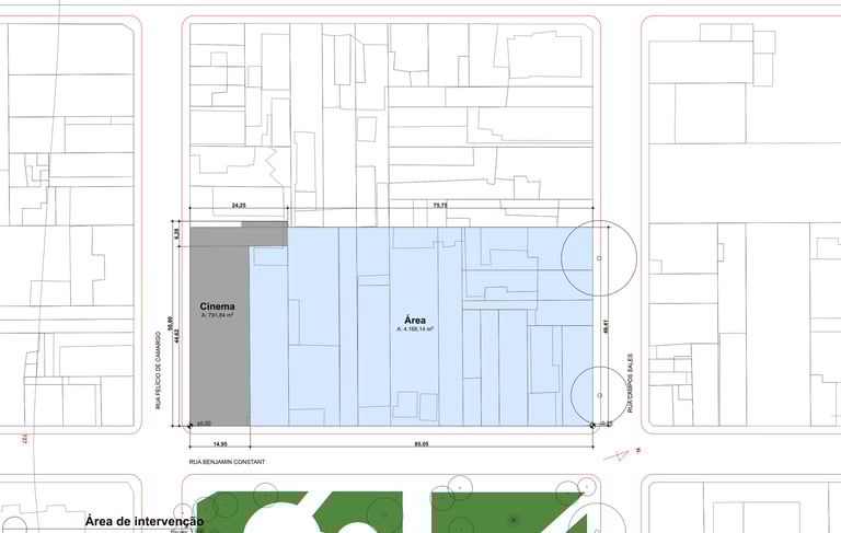
Complexo híbrido em Suzano
Próximo à estação da CPTM, já demonstra suas condicionantes, como a Igreja (antigo Cinema Saci) situado na face oeste do terreno.


Inspiração
O Edifício Sede da Petrobrás, carinhosamente conhecido pelos cariocas como EDISE, foi a inspiração principal deste projeto. Concebido há mais de 50 anos, intercala espaços abertos de convívio em sua fachada, por vezes, rude, trazendo um ritmo e vibração especial à construção mesmo após passados tantos anos. Em 2021 teve início sua primeira reforma. É motivo de orgulho dos funcionários e da própria Petrobrás.


Inspiração
Impossível não citar o Conjunto Nacional quando se trata de complexos híbridos. Símbolo máximo nesse sentido, embora sua massa pareça monstruosa a princípio, chega a ser tão delicado em seu percurso que nem se percebe a transição entre a calçada e o interior do prédio.


Primeiros estudos
Sou fascinado por giz, sempre fui. Adorava ver os tipos de letras dos professores que me ensinaram ao longo da vida brotando na lousa. Entre várias técnicas utilizadas no processo criativo, acho o giz uma das mais versáteis. Basta desenhar, apagar o que não deseja, refazer algumas pontuações, tirar uma foto e pronto, processo registrado. Claro, sempre com o sketchbook à mão para documentar o andamento. Na foto vemos a conceituação inicial, partindo de um térreo mais extrovertido e, à medida que subimos para os pavimentos superiores, a introversão se faz visível e os pavimentos são acessíveis somente a moradores ou hóspedes na base do hotel.


Volumetria inicial
Conjugando as qualidades das duas inspirações, pretendi desenvolver algo que ao mesmo tempo tivesse o zoneamento inteligente do Conjunto Nacional mas que, também, possuísse uma fachada mais dinâmica, como o Edifício Sede da Petrobrás. As áreas em azul claro são do setor comercial, azul escuro auditório, vermelho hotelaria e amarelo residencial.


Volumetria inicial
A base comercial se dará por um teto maior do que o pavimento térreo. Ao mesmo tempo proporciona liberdade e ausência de estruturas para aquele pavimento, como também espaço para o desenvolvimento de terraços ativos nos níveis superiores.


Primeira entrega
Estudos de volumetria e setorização
Archicad e os módulos associados.
A ferramenta de módulos associados é fundamental no Archicad. Dividindo o modelo em camadas, é possível, com um só comando, alterar, por exemplo, a posição de um pilar em toda construção. A estrutura de trabalho básica é um arquivo raiz com os tipos montados, como o da foto ao lado, eu um arquivo final, que será o que efetivamente vai para a apresentação.


Estudo dos pavimentos tipo.
Arquivo final montado com o arquivo de origem acima. O tipo, na verdade, é um só que é repetido em todos os pavimentos. Assim, possibilita-se a modularização das mudanças e evita o retrabalho. A imagem à esquerda ainda está com o setor comercial somente com volumetria, pois ainda encontra-se em processo de estudo e concepção.


Segunda entrega
Sistema estrutural e avanço nos estudos.
Terceira entrega
Estudo preliminar e entrega técnica.
Entrega final
Graduação 9,0.


